LOCAL COMERCIAL EN ALQUILER
+ID: 6130
$ 2800000
Localidad: Lujan de Cuyo
Domicilio: Terrada S/\n mts J.J. Paso. Frente B. Alto Terrada
CONTACTO PROPIEDADES INMOBILIARIA
ALQUILA LOCAL COMERCIAL - TERRADA CENTER.
Terrada Center, predio cuenta con 5 unidades. Construidas con placas friolatina (poliuretano inyectado) en muros y techos, calle central con adoquines, posee estacionamiento para mas de 30 vehículos.
Fácil acceso y excelente exposición en una de las áreas más concurridas de la Provincia.
A escasos metros de Intersección J.J Paso & Acceso Sur. Aledaño Maristas Rugby Club, frente a B° Alto Terrada.
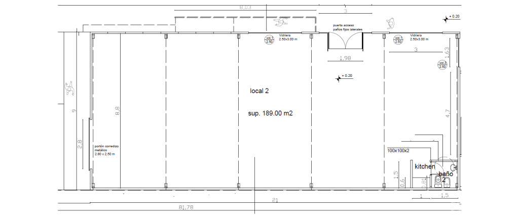
SUPERFICIE Y DISTRIBUCIÓN: Local N°2
-Sup. Cubierta: 189 m2 /\ 7 mts de altura.
-Amplio salón con vidrieras, posee vidrios Blindex.
-Kitchen.
-Baño
VALOR: $ 2.800.000 mensual
Expensas $ 100.000 (incluye agua, municipalidad y limpieza)
*APTO PARA: Actividades complementarias y conexas al sector de la construcción.*
*CONTRATO POR 24 MESES*
*INCREMENTOS CUATRIMESTRALES POR ICL*
REQUISITOS
1. Documentación del solicitante:
Para Personas Físicas:
.DNI válido
.Comprobante de ingresos (recibos de sueldos, declaraciones de ingresos, etc)
.Referencias personales o comerciales
Para Personas Jurídicas:
. Estatuto social de la empresa
. Acta de constitución
. Poder del representante legal
. Últimos estados financieros
. Constancia de CUIT
2. Garantías:
. Dos garantes propietarios.
3. Extras:
.Mes de alquiler
.Honorarios inmobiliarios 5% total del contrato
.Mes de deposito de garantía
.Certificación de firmas a cargo del solicitante por escribano publico.
Contactanos por WhatsApp para coordinar tu visita o solicitar mayor información.
CONTACTO PROPIEDADES INMOBILIARIA más de 50 años de trayectoria.
Seguinos en redes y enterate de todas las novedades!
Instagram: contactoinmobiliaria
Facebook: contactopropiedadesinmo
Web:
*La presente publicación describe las características esenciales del inmueble, debiéndose consultar al corredor público inmobiliario responsable de la operación por la eventual actualización de las medidas, descripciones arquitectónicas y funcionales, valores de expensas, servicios, impuestos, precios y demás información, cuyos valores son aproximados en esta publicación*
ALQUILA LOCAL COMERCIAL - TERRADA CENTER.
Terrada Center, predio cuenta con 5 unidades. Construidas con placas friolatina (poliuretano inyectado) en muros y techos, calle central con adoquines, posee estacionamiento para mas de 30 vehículos.
Fácil acceso y excelente exposición en una de las áreas más concurridas de la Provincia.
A escasos metros de Intersección J.J Paso & Acceso Sur. Aledaño Maristas Rugby Club, frente a B° Alto Terrada.
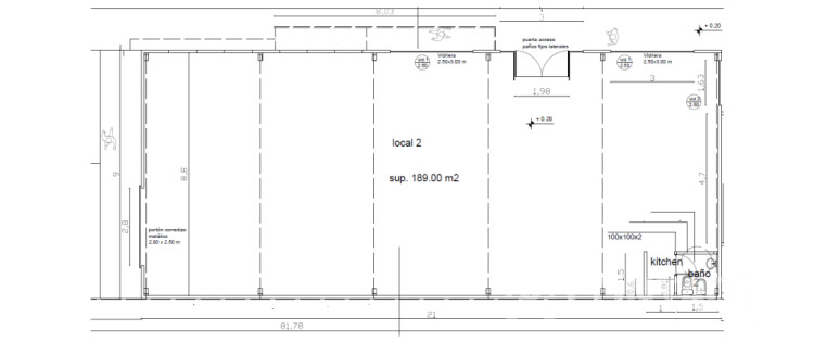
SUPERFICIE Y DISTRIBUCIÓN: Local N°2
-Sup. Cubierta: 189 m2 /\ 7 mts de altura.
-Amplio salón con vidrieras, posee vidrios Blindex.
-Kitchen.
-Baño
VALOR: $ 2.800.000 mensual
Expensas $ 100.000 (incluye agua, municipalidad y limpieza)
*APTO PARA: Actividades complementarias y conexas al sector de la construcción.*
*CONTRATO POR 24 MESES*
*INCREMENTOS CUATRIMESTRALES POR ICL*
REQUISITOS
1. Documentación del solicitante:
Para Personas Físicas:
.DNI válido
.Comprobante de ingresos (recibos de sueldos, declaraciones de ingresos, etc)
.Referencias personales o comerciales
Para Personas Jurídicas:
. Estatuto social de la empresa
. Acta de constitución
. Poder del representante legal
. Últimos estados financieros
. Constancia de CUIT
2. Garantías:
. Dos garantes propietarios.
3. Extras:
.Mes de alquiler
.Honorarios inmobiliarios 5% total del contrato
.Mes de deposito de garantía
.Certificación de firmas a cargo del solicitante por escribano publico.
Contactanos por WhatsApp para coordinar tu visita o solicitar mayor información.
CONTACTO PROPIEDADES INMOBILIARIA más de 50 años de trayectoria.
Seguinos en redes y enterate de todas las novedades!
Instagram: contactoinmobiliaria
Facebook: contactopropiedadesinmo
Web:
*La presente publicación describe las características esenciales del inmueble, debiéndose consultar al corredor público inmobiliario responsable de la operación por la eventual actualización de las medidas, descripciones arquitectónicas y funcionales, valores de expensas, servicios, impuestos, precios y demás información, cuyos valores son aproximados en esta publicación*